Shree Nivash Enclave – 2 & 3 BHK Flat
FeaturedOverview
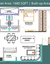
Flats at the centre of Rishikesh . Discover your perfect home in this stylish 2 & 3 BHK flat for sale in Ganga Nagar, Rishikesh, an ideal choice for those seeking a peaceful yet vibrant lifestyle.
- 2 & 3 BHK flat in Ganga Nagar, Rishikesh
- East facing property
- Just 300 meters from Ganga River
- Just 1 km from AIIMS Hospital
- Just 200 meters from Badrinath – Delhi National Highway
Details
-
Price (₹):Starting from ₹ 90 Lac*
-
Status:
Amenities
- Double Gated Private Road at the front
- False Ceiling
- Fans and Lights
- Lift
- Modular Kitchen with Chimney
- Parking
- Wardrobes


